Projekt ISE339

Historische Fenster

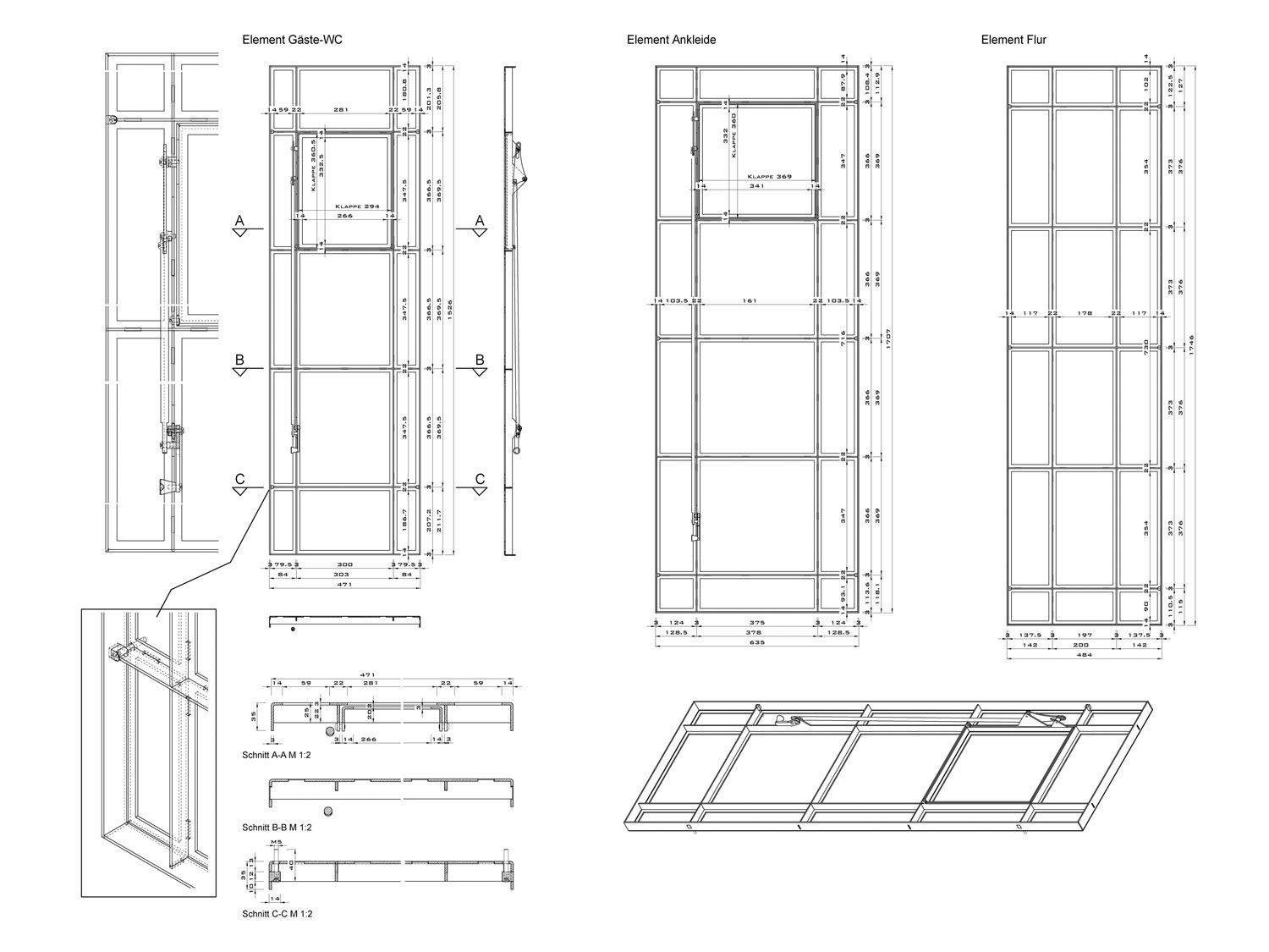
Auf Basis der bestehenden Baustruktur wurden neue Fenster entwickelt, darunter Varianten mit einem integrierten Kippelement, das über eine klassische, neu konzipierte Stabmechanik bedient wird. Die Sichtschutzelemente wurden in traditioneller Glasertechnik mit Fensterkitt in die filigranen Stahlrahmen eingesetzt. Alle Elemente fügen sich präzise ein und erzeugen eine ausgewogene Symbiose aus Design, Funktion und handwerklicher Tradition.

Jahr 2025
Ort Hamburg
Leistungen Fenster
Nächstes Projekt

Mehr entdecken:

Kontakt

Für weitere Informationen und einen direkten Austausch zur Planung und Abwicklung Ihrer Projekte stehen wir Ihnen gerne persönlich zur Seite. Wir freuen uns auf Sie.

zum Kontaktformular

Wa(h)re Handarbeit

Als erfahrener Meisterbetrieb mit eigenem Maschinenpark realisieren wir mit hoher Qualität, Erfahrung sowie Wirtschaftlichkeit sämtliche Arbeiten aus einer Hand. Zu Vorgesprächen kommen wir auch gerne zu Ihnen und beraten Sie vor Ort.

Zum Kontaktformular
Top